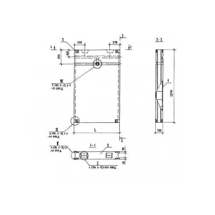
БВ 4.9-0.3 - это вентблок, предназначенный для использования в железобетонных конструкциях. Он обеспечивает надежную вентиляцию и защиту от влаги внутренних помещений. Благодаря своей конструкции и качественным материалам, из которых изготовлен данный вентблок, он обладает высокой прочностью и долговечностью.









